敷島住宅のモデルハウスを徹底解剖! 敷島ステラ 西京区・樫原でイチ押しの2棟をご紹介!!
こんにちは、敷島住宅京都市西京区エリア担当のMです。
今回は敷島ステラ 西京区・樫原で大注目のモデルハウスを一気に2棟ご紹介いたします!
江戸時代に宿場町として栄え、歴史ある町並みを今に伝える西京区樫原地区。
現在は京都市の「界わい景観整備地区」に指定されるこのエリアに、弊社の分譲地「敷島ステラ 西京区・樫原」があります。
最寄りの阪急「桂」駅までは徒歩17分。
「桂」駅には特急電車が停まるので、「烏丸」駅までわずか7分で到着。
また、大阪「梅田」駅へは朝8時台に準特急で42分、日中なら特急で34分の好アクセスです。
近隣には樫原小学校や樫原中学校のほか、複数の保育園や幼稚園が充実。
クリニックやスーパーなども徒歩10分圏内に点在しています。
週末には少し足を伸ばして、JR「桂川」駅前のイオンモールでショッピングも楽しめますよ。
こちらの街区では、周辺の古い町並みに溶け込むように瓦屋根や石畳、格子などを配した京町家スタイルを提案。
さらには太陽の光や熱、風などを最大限に活用し、自然の力で室内環境を快適に保つ「パッシブデザイン」を採用しています。
それでは是非、最後までご覧ください!
■今回ご紹介する敷島ステラ 西京区・樫原周辺のおすすめ分譲地はこちら
◆今回ご紹介する「敷島ステラ 西京区・樫原」についてはこちらをご覧ください。
◆他周辺おすすめ分譲地はこちらから
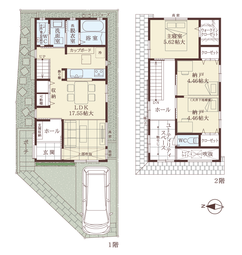
1号地 1LDK+2S
【1号地/ココが大注目ポイント!】
●太陽光の蓄熱効果を狙ったタイル仕上げ

↑タイル仕上げのリビング。ブラック系の床面で最大限の蓄熱効果を狙っています

↑2Fのユーティリティスペースも半面をタイル仕上げに
玄関ポーチと1階リビング、2階のユーティリティスペースをまったく同じ色柄のタイルで仕上げてあるのがポイントです。
屋外と室内に視覚的な統一感をもたらすだけでなく、吹き抜け+天窓から届く太陽熱をタイルに蓄えて有効活用するのが目的。
蓄えた熱をタイルがゆっくり放出し、冬でもリビングが温かく、特にユーティリティスペースでは室内干しの洗濯物がよく乾きます。
これこそまさに自然エネルギーを活用して、快適な住空間を作り出すパッシブデザインのお手本。
電化製品に頼らないからノーコストで、地球環境にもやさしいのがメリットです。

タイルには木材の約2倍の蓄熱効果があるといわれ、熱が伝わりやすく、冷めにくいのが特徴です
【1号地/こちらのポイントもチェック!】
●京町家を意識した和モダンテイスト
![]()

日本伝統の瓦葺きの切妻屋根を筆頭に、四隅に配した付け柱も粋な和の雰囲気をさらに強調しています。
また、通りに面した境界には、京町家らしい「駒寄(こまよせ:泥はねやほこりから建物を守る柵)」や飛び石をレイアウト。
2階の窓には縦格子が取り付けてあり、京町家の「虫籠窓(むしこまど)」のように採光と通風の役割を果たしています。
●玄関からLDKへは2通りの動線で

玄関扉を開けると出現するのは、2つの格子戸。
向かって右手は京町家の「火袋」や「通り庭」のように、奥ゆきのある吹き抜けの下を通ってリビングにアクセスする動線。
一方、左手は玄関ホールからダイニングやキッチンにアクセスする動線です。
この2つの動線により、玄関から目的地へすばやく到達することが可能です。
【1号地/1LDK+2S データ】

■敷地面積:93.92㎡(28.41坪)
■建築面積:45.62㎡
■1階床面積:45.62㎡
■2階床面積:42.93㎡
■延床面積:88.55㎡(26.78坪)
2号地 1LDK+2S
【2号地/ココが大注目ポイント!】
●京町家の“奥性”を表現した奥ゆきのある玄関ホール

一般的に「うなぎの寝床」と形容される京町家は間口が狭く、奥ゆきのある間取りが特徴です。
こちらのモデルハウスでは、その特徴的な造りにならい、玄関から手洗い、スケルトン階段、収納、洋室、納戸、中庭を望むベンチが一直線上にある長い玄関ホールがポイントです。
この直線的な動線により、帰宅したらまず手を洗い、各お部屋で着替えたり、ホールベンチでひと息ついたり…。
玄関を開けたらすぐに思い思いのくつろぎ時間を満喫できるのです。
【2号地/こちらのポイントもチェック!】
●京町家の風情を感じる縦格子が印象的

瓦屋根の下、2階の正面に縦格子を取り入れた大胆な意匠が印象的。
玄関扉も縦格子風のデザインで、上下に統一感をもたせてあります。
直線的なデザインを多用しながらも冷たい印象にならないように、ナチュラルで温かみのあるグレージュのサイディングを採用しています。

格子は“京町家の顔”といわれるほど代表的な意匠です
●光と風を効果的に取り入れた2階リビング


16.86帖の開放感のある2階リビング。
あらゆる方角に大小の窓を配し、日中は常に自然光の明るさを満喫できるようにしてあります。
さらには、1階の玄関ホールから2階へ風を通せる設計も自慢。
湿気やカビ・ダニ対策はもちろん、嫌な臭いやウイルスをこもらせず、室内の空気をいつもフレッシュに保つことが可能です。
また、2階リビングの場合、小さなお子様の転落を心配されるお声もありますが、こちらでは敢えて階段幅を狭くしてベビーゲートを取り付けやすくしてあります。

今や子育てにベビーゲートは必須アイテムですね
【2号地/1LDK+2S データ】

■敷地面積:97.65㎡(29.53坪)
■建築面積:52.99㎡
■1階床面積:52.99㎡
■2階床面積:48.03㎡
■延床面積:101.02㎡(30.55坪)
まとめ
今回は、敷島ステラ 西京区・樫原で「太陽光を生かしたパッシブデザインの家」「京町家スタイルの奥ゆきを楽しむ家」の2棟のモデルハウスをご紹介しました。
他にも敷島住宅では、ご家族の個性に合わせたモデルハウスを多数ご用意しています。
是非実際に足を運んで、弊社の家づくりをご体感くださいませ。
尚、現在販売中のモデルハウスはこちらからもチェックできます。
◆モデルハウス一覧
◆今回ご紹介した「敷島ステラ 西京区・樫原」についてはこちらをご覧ください。
◆他周辺おすすめ分譲地はこちらから

- 敷島住宅営業部が執筆者です。お客様の住まい選びのお手伝いをしています。
最新の投稿
- 2026.02.20イベント【屋内で体を動かして遊ぼう!】トンデミ枚方 枚方モール店
- 2026.02.13キャンペーン案内2/28まで【最大170万円!】敷島住宅限定支援金+みらいエコ住宅事業
- 2026.02.06間取り紹介モデルハウスを徹底解剖!! セレーノコート草津・平井 ストレスフリーの平屋の住まい
- 2026.01.22イベント甲賀市×近江八幡市「御城印スタンプラリー」開催中!
関連記事
【お出かけ前に必読!】城陽のTWINKLE JOYO 2022に行ってきた!大人気イルミネーションをご紹介
休日は子連れで遊びに行くのが楽しみな営業担当のTです。 今回は、城陽市のイルミネーション光のページェント「TW…














